


















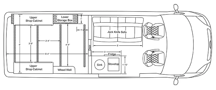
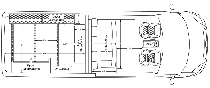
The MOTO Van was built for those that want to travel with their motorcycle, dirt bike, four wheel and still have a place to stay.
With the MOTO Van you can travel in comfort. Get to your destination, unload your machine and come back and have a place to rest at night.
Even better, the MOTO Van has all the power you need and a garage setup so you can work on your machine on the go.
Are you ready for a MOTO Van of your own?
101
102
103
104
105
201
200
203
202
310
22″ Flip Down LCD Monitor w/ DVD & Headphones – Speakers
500
503
Game Ready for Wii, PS4, or Xbox – 400 Watt Pure Inverter
501
Webasto Air Top Heater Gasoline (Front/Rear)
205
Power Awning – Power with Switch – Wind Sensors
305
302
304
301
320
303
16″ Custom Wheels on Factory Tires
401
17″ Custom Wheels on Goodyear Tires
402
All work done by Waldoch is under a 3 year/36,000 mile Warranty.
Get your Waldoch vehicle serviced at any dealership or shop nationwide
Waldoch upfits are compliant with Federal Motor Vehicle Safety Standards, QVM, MVP with NTEA and SEMA Members
The entire package can be financed with the purchase of the vehicle. One simple and easy payment.
Waldoch proudly upfits vehicles in the USA.
Our campers are RVIA certified. This means you’re buying a Recreational Vehicle Industry Association (RVIA) certified vehicle, which indicates our campers meet over 500 safety requirements. This includes construction, electrical, plumbing, heating, and fire safety.
If you selected Yes to receiving special offers – Waldoch is committed to protecting and respecting your privacy, and we’ll only use your personal information to administer your account and to provide the products and services you requested from us. From time to time, we would like to contact you about our products and services, as well as other content that may be of interest to you. You can unsubscribe from these communications at any time. For more information on how to unsubscribe, our privacy practices, and how we are committed to protecting and respecting your privacy, please review our Privacy Policy.
You can now download brochures.
You’ll see links on the page as soon as you close this window.